IT

Modena villa


Collaboration in architecture design, production of digital perspective views for the final presentation.

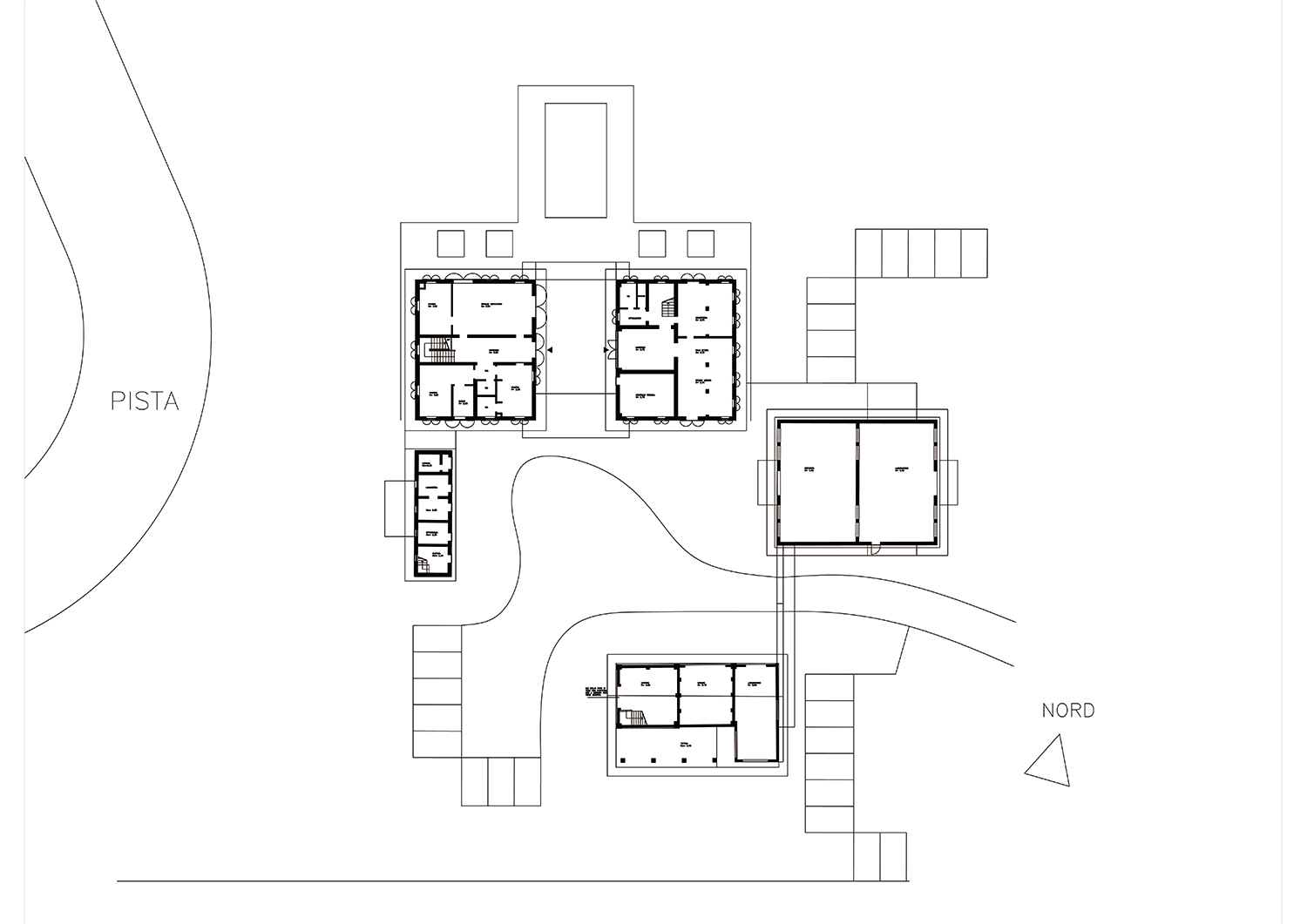
The project involves the architecture and exterior design for a construction of a luxury villa in Modena.


The project is based on a reconstruction of an old farm.

Involves the architecture design of all the internal spaces and the exterior, rooms and garden.

The complex bound with the famous Mugello race track

Properties

Year

2016

Client

ALESSIO LLC

Location

Modena, Italy

Project Type

Illustration, Architecture